开间8米x进深10米,农村自建房别墅,四面开窗,怎
428x615 - 38KB - JPEG
开间8米x进深10米,农村自建房别墅,四面开窗,怎
432x624 - 34KB - JPEG
开间8米x进深10米,农村自建房别墅,四面开窗,怎
614x394 - 21KB - JPEG
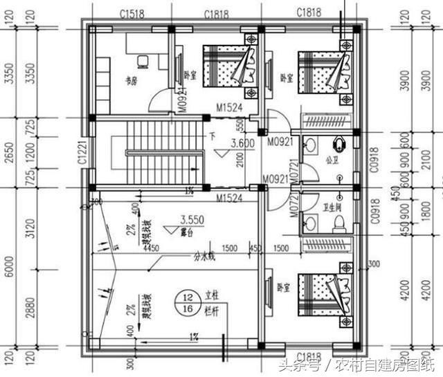
开间8米x进深10米,农村自建房别墅,四面开窗,怎
422x627 - 45KB - JPEG

开间12米,进深12米,这两套方形自建别墅你更喜
636x458 - 56KB - JPEG
开间12米进深10米的农村豪华别墅,外观精致又
543x452 - 40KB - JPEG

16套二层农村别墅图纸,第5套、9套最大气,最受
640x545 - 59KB - JPEG

13套开间7、8、9米的别墅, 最小的面积只有73
1000x724 - 174KB - JPEG
开间12米进深10米的农村豪华别墅,外观精致又
705x683 - 53KB - JPEG
农村自建房开间12米,进深10米怎么设计比较好
640x628 - 61KB - JPEG

3套小开间农村别墅设计图,面宽8米左右,中式、
600x600 - 49KB - JPEG

开间7米也能盖别墅,二层、三层、四层、五层都
640x560 - 63KB - JPEG

开间10米,进深9米的3层自建房别墅,该怎么设计
996x776 - 69KB - JPEG
开间12米进深10米的农村豪华别墅,外观精致又
750x672 - 54KB - JPEG

农村自建房别墅最佳户型图排名前5榜,户型4最
640x629 - 53KB - JPEG
开间12米,进深8米的2层小别墅,这样的户型属于比较常见的宅基地尺寸。现在为您简单介绍一款,若您不满意,欢迎关注乡墅建房的头条号,每天都有好户型分享。 这是一款简欧式
开间8米进深12米别墅屋顶 这个开间12米,进深8米的农村二层房屋为砖混结构,主体造价20万左右。占地100平方米。 kai jian 8 mi jin shen 1 2 mi
在农村自建房屋,大部分宅基地面宽12米左右,进深8到10米,虽然网上各式各样的别墅看 开间:11.04米,进深:8.54米, 占地面积:89.96平方米 第五套:新农村自建房设计图及效果图
不多见。这里小编带大家一起来看一下这两套开间进深一样的方形自建别墅,看你更喜欢哪套。自建别墅一别墅基本信息:占地尺寸:12X12米;占地面
是农村盖吗?这种的再加一层就行,三层应该是六间卧室,两套客餐厅,三个卫生间,一个厨房,一个活动室,一个观景平台,一个车库,够你用得了 需要图纸联系
农村自建房别墅12米X8米简单实用户形非常适合南方农村,尤其是海边江边等潮湿地区 开间: 12米进深: 8米占地面积: 100.86平方米建筑面积: 227.77平方米 图纸内容 建筑图:
这个开间12米,进深8米的农村二层房屋为砖混结构,主体造价20万左右。占地100平方米。
平顶的现代别墅,外立面大量使用白色,明亮而充满活力。 车库进门直通楼梯间,缩短上楼动线,带来生活上的便利。卫生间楼梯间巧妙的分隔了公共区和居住区,让主人的居住生活
*~恩,请介绍下:共几层呢?~每层卧室、客厅、餐厅、厨房、卫生间都需要么?各几间呢? ……四周都可以开窗么?
每层功能要哪些? 介绍一下你 、坐向、设计要求、地基周边情况……