如果您是网站的管理员,并且认为您是由于错误才收到此消息,请参阅 IIS帮助中的 启用和禁用动态内容 。 要访问 IIS帮助 单击开始,然后单击运行。 在打开文本框中,键入 inetm

湖州施工CAD软件制图培训中心 湖州施工平面
725x364 - 68KB - JPEG
cad门楼施工图|太原*专业的cad培训中心
448x252 - 27KB - JPEG

某培训中心结构施工图 - 其它cad办公楼类建筑
820x550 - 287KB - JPEG

某培训中心设计方案cad011
611x537 - 73KB - JPEG
WHQF CAD培训中心机械制图CAD班ZSJZ_C
490x351 - 68KB - JPEG

苏州狮山培训CAD画图 苏州新区捷梯CAD培训中心
340x275 - 17KB - JPEG

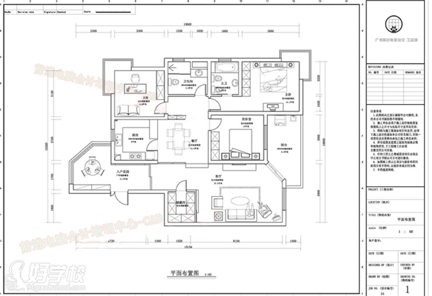
CAD室内设计平面图施工工程作品展示-前进电
610x418 - 119KB - PNG

全套儿童艺术培训中心CAD施工图效果图(图片
780x585 - 131KB - JPEG

非凡CAD石材培训中心火热招生中.-便民广告-
1136x852 - 139KB - JPEG

镇江室内设计师培训中心CAD2004-20093DM
800x686 - 156KB - JPEG

xx少年宫学校培训中心整套cad建筑设CAD素材
1024x575 - 129KB - JPEG

江阴机械CAD培训中心,江阴哪里能学CAD画图
340x301 - 16KB - JPEG

cad2008视频教程打包下载室内设计培训中心-
320x240 - 6KB - JPEG

供应合肥室内外设计培训CAD培训中心怎样学
1000x693 - 168KB - JPEG

全套二层培训中心大门建筑施工图CAD素材免
650x332 - 60KB - JPEG