本套图纸为三层农村房屋户型平面图,包括一、二、三层的平面图和平面布置图,建筑占地是15米x9米,供参考! 农村自建房 就上51盖房网!致力于新农村住宅设计图下载及设计交
新农村单家独院一层建筑+院落布置平面图 - A
820x589 - 67KB - JPEG

某地区农村二层房屋平面户型布置图_cad图纸
610x432 - 35KB - JPEG

三层新农村房屋设计平面布置方案图
590x289 - 31KB - JPEG

住宅室内平面布置图免费下载
456x361 - 21KB - JPEG

新农村住宅设计图_cad平面布置图设计_平面设
662x520 - 34KB - JPEG

某地区农村二层房屋平面户型布置图_cad图纸
610x432 - 11KB - JPEG

房屋平面布置图 - 装修讨论 - 中国汽车修理技术
828x504 - 118KB - JPEG

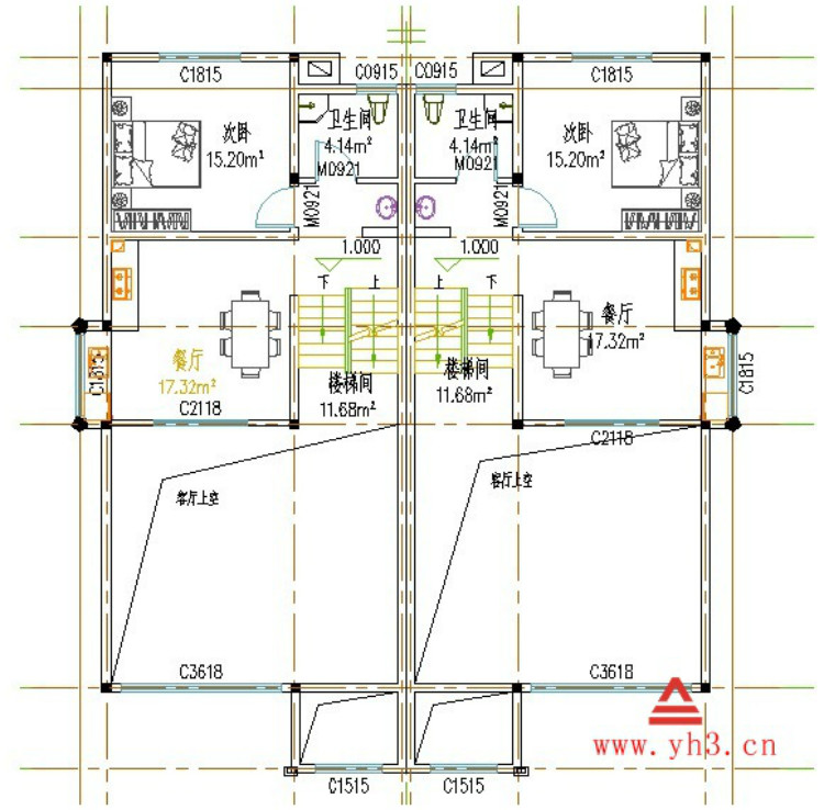
平面设计-房屋别墅设计图 建筑平面布置图 自建
750x738 - 136KB - JPEG

求一个北京农村住宅平面布置方案
2000x1368 - 188KB - JPEG

农村房屋平面设计图
500x331 - 17KB - JPEG

农村住房楼梯如何布置
556x640 - 40KB - JPEG

新农村住宅设计图_cad平面布置图设计_平面设
500x500 - 53KB - JPEG

某地新农村小型别墅装修设计施工图
610x432 - 24KB - JPEG

新农村住宅设计图_cad平面布置图设计_平面设
560x420 - 75KB - JPEG

楼房平面布置图图片-环境图片|图片库|图库下载
800x596 - 83KB - JPEG