到我空间相册里面看看,有几百套漂亮的房屋设计效果图可供你参考选择,没有满意的还可替你设计。详细咨询加好友网聊
1、朝向有问题,没见过把卫生间放到南边而把客厅放到北边的,如果是地块和周边环境影响的可以理解;2、功能区划分太凌乱了,一般要求动静分区,餐厅和客厅做成立连厅可以功能互补,增加彼此的用途同时感觉很大气;3、厨房太大;4、厕所太小。有这么大的地块,很好做设计啊!看的的效果图还整成个欧式风格的别墅造型呢,说明你有个好的品味。到网上搜一下别墅涉及平面会好些,一定要把一楼和二楼的客厅部分做成挑空的,这样才有感觉。如果我是要求不超过六七个建议一楼不要设卧室。
给个图给你参考这个二层农村自建房开间12米,进深10米,主体造价20万以内,外形比较简单实用向左转|向右转
专业设计师的年薪大概要15~30万一年,也就是2万多一个月,那么一个精品自建房的工作起码也要画俩周左右,所以如果是建筑、景观和室内同时设计的精品方案,那就
这么漂亮的户型,需要花多少钱呢?微信号:住宅公园,12月2日(周三)晚8点半,会发布框架结 微信公众号:住宅公园,海量免费别墅自建房户型图纸及建房成本计算器,各种新型房屋及
农村盖房图纸12米X10米两间三层120平米最佳房屋设计图 南京漆桥公司|2018-06-26 |举报 专业文档 专业文档是百度文库认证用户/机构上传的专业性文档,文库VIP用户或购买
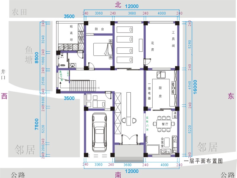
这款简单实用的怎么样,开间12米,进深10米,占地面积120平方米,一层设计有走廊、客厅、卧室(附储藏间)、厨房、餐厅、储藏间、卫生间
基本符合大多数自建房占地标准的要求,基地东西方向12m,南北方向10.46m,基底面积7 免费自建房别墅图纸预算,最新住宅建造科技,都在微信公众

中国徽派自建房别墅13*12米 含图纸预算
640x828 - 63KB - JPEG

12米乘10米自建房图纸
800x800 - 63KB - JPEG

8米乘12米自建房图纸二楼三房两卫一个厨房,两
600x430 - 26KB - PNG

广州农民自建房11x9米,含平立面图+户型说明
640x576 - 39KB - JPEG

12米乘10米自建房图纸
800x600 - 93KB - JPEG
8×10自建房设计图纸 自建房设计图纸
733x580 - 60KB - JPEG

12米乘10米自建房图纸
494x500 - 33KB - JPEG

12米乘10米自建房图纸
640x480 - 56KB - JPEG

12米乘10米自建房图纸
750x524 - 56KB - PNG

12米乘10米自建房图纸
600x499 - 66KB - JPEG

实用农村自建房户型12米×10米
640x805 - 243KB - JPEG

12米乘10米自建房图纸
800x600 - 107KB - JPEG

12米乘10米自建房图纸
640x480 - 48KB - JPEG

12米乘10米自建房图纸
750x528 - 38KB - PNG
170平米18x12米二层坡屋顶农村自建房别墅设
640x524 - 67KB - JPEG
但住得舒服,钱也花得值,下面自建别墅网的小编为大家挑选1款10×12米复式三层新农村自建房设计图,一起来看这套图纸详情。这款三层新农村自建房设计图开间进深10米×.