在回答这个问题时,不能直接从电视的尺寸入手。 首先,你要确定你选择的电视是1080P还是4K电视。 选4K电视,视距可以比1080P缩短一半 同样尺寸下,4K与1080P所带来的像素和像素密度不同,即便片源支持不到4K水平,但在1080P相对普及的当前,4K与1080P硬件带来的观感差异也是不一样的。 人眼在不同距离对像素密度有着不一样的分辨需求,举个例子来说,如果你日常以观看1080P内容为主,大致2米的观看距离是清晰度的临界点,超过这个距离意味着1080P与更低分辨率的视频清晰度差距将明显降低,可能2.5米情况下你看720P与1080P都不会感受到清晰度的不同了。 专业机构给出的结论是:4K电视最佳观看距离是1.5倍电视高度,相当于1080P建议观看距离的一半,也就是说大致1米(精确数值是0.93)是50英寸4K电视清晰度的临界值。 1米内看50英寸对一般人来说会带来很大的视觉压力,而且一般也不会在居家环境中遇到只有1米的空间(即便再蜗居,也有更大的距离),所以,电视的起步尺寸可以从50英寸/48英寸开始。 电视越看越小,大一号没问题 回忆下家中第一台电视就会发现,即便房子没有特别
大尺寸的平板来达到最佳显示效果。如果居民家庭观看电视的 第三方监理 客厅开间与电视尺寸的比例 西门在线 投稿者 企业版售前咨询(08:30-17
北京台教的一个方法是,人坐在沙发上,将你的右臂前伸(向前打直),右手掌手指并拢朝向左方,手背面向自己挡在看向电视机的视线上,如果你的手掌基本上刚刚挡住屏幕,那么这个
40~50寸都而已! 一般看电视,有线,数字电视之类的,40/42寸就可以了! 如果看DVD,高清等等,50寸也足够大了!

3.5米宽小户型客厅适合多大尺寸电视机 客厅开
1068x644 - 28KB - JPEG

小空间有大讲究 3米小开间电视选购
500x363 - 49KB - JPEG

农村自建房,每个房间的开间进深合理尺寸是多
524x631 - 24KB - JPEG

3.5米宽小户型客厅适合多大尺寸电视机 客厅开
1067x639 - 21KB - JPEG

3.5米宽小户型客厅适合多大尺寸电视机 客厅开
940x591 - 29KB - JPEG
开间、进深如何区别?每个房间的开间进深尺寸
524x549 - 19KB - JPEG

收纳没做好,两年后你家就会成个杂物堆|装修交
550x400 - 31KB - JPEG

为了这个电视 农村小伙在市区买了200平新房
730x860 - 52KB - JPEG

为了这个电视 农村小伙在市区买了200平新房
670x789 - 83KB - JPEG

1111天包换,1元预定抢半价,酷开电视天猫双11
1269x755 - 103KB - JPEG

4K时代智能电视尺寸这样选择才合理
553x368 - 29KB - JPEG

智能电视尺寸如何选择?了解吋和寸的区别可以
724x432 - 84KB - JPEG
小尺寸电视也好看,能说会听还好玩--微鲸43D测
640x480 - 42KB - JPEG

请教下大家电视屏幕破了怎么办?
500x375 - 51KB - JPEG

智能电视怎么选?教你选购电视的正确姿势!
535x275 - 23KB - JPEG
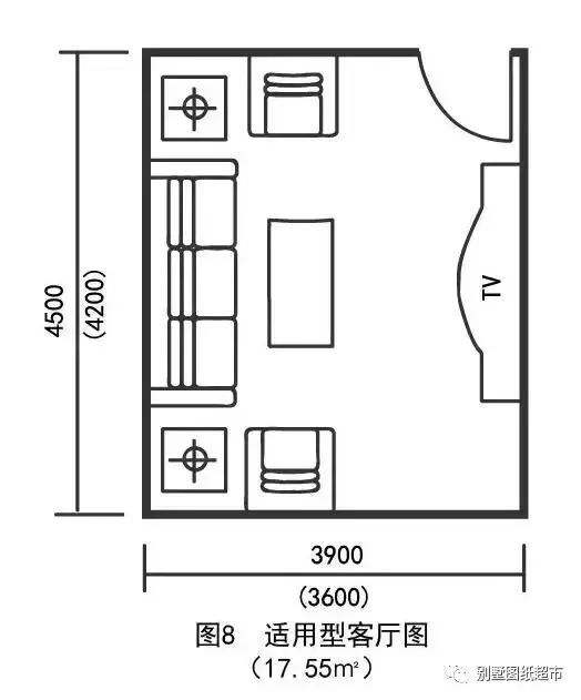
客厅开间与电视尺寸 A:3.6米乘以4.5米的客厅一般适合摆放46寸或47寸大的电视机。1、电视机的尺寸一般与*距离有关,假设客厅的宽度为4.5米,减去沙发的宽度1米左右,所以*
一起装修网问答平台为您提供客厅开间与电视尺寸的相关答案,并为您推荐了关于客厅开间与电视尺寸的相关问题,一起装修网问答平台:装修问题,因我而止。 短信快捷登录 请输
一般来说,客厅的开间最少要达到3.5米,主卧室最小也不得小于12个平方米,客房以及书房最好也能达到8个平方米左右。 电视买多大尺寸合适客厅开间4.5米,想买一个壁挂式电视
46米客厅开间购买多大尺寸的电视合适 电视常识!各尺寸电视长高统计如下(各系列电视边框高窄不一,在0.5厘米上下浮动): 32吋:长73厘米,高43厘米。适合距离2米 39吋:长88厘
根据有关资料介绍,电视的最佳收看距离为3.5~4倍左右。46吋×2.54=116.84cm×3.75倍(取平均值)≈4.4米。所以客厅开间4.5M,可选择46吋的电视。 本回答被网友采纳 已赞
4.6米客厅开间,购买多大尺寸的电视合适电视常识!各尺寸电视长高统计如下(各系列电视边框高窄不一,在0.5厘米上下浮动): 32吋:长73厘米,高43厘米。适合距离2米 39吋:长88