本图纸为130平米四室两厅两卫全套装修施工图。图纸格式为dwg,图纸内容包括:原建筑图、平面布置图、阁楼平面图、地面布置图、阁楼地面图、天花布置图、阁楼天花图、
素材描述:红动网提供室内装修精品原创素材下载,您当前访问作品主题是四室两厅L型平面图,编号是7790659,文件格式是PSD,请使用Photoshop CC及以上版本打开文件,您下载
包图网提供精品模板下载,本设计作品为多层户型图四室两厅家装CAD平面图,格式:DWG,像素:1920x1080,分辨率:300,下载即可获得源文件,作品可编
素材描述:红动网提供室内装修精品原创素材下载,您当前访问作品主题是豪华公寓四室两厅户型平面图,编号是7760341,文件格式是PSD,请使用Photoshop CC及以上版本打开文

预算30万半包129平米 广州四室两厅房子装修
538x315 - 24KB - JPEG

南宁嘉和城白鹭郡嘉和城白鹭郡户型图 129平4
900x858 - 87KB - JPEG

128平四室两厅混搭风格装修 既有东南亚风格又
640x501 - 27KB - JPEG

黄委会家属院160平方四室两厅装修案例
524x450 - 76KB - JPEG

128平四室两厅混搭风格装修 既有东南亚风格又
640x501 - 27KB - JPEG

正商铂钻 220平方 四室两厅 新古典 案例装修效
810x900 - 106KB - JPEG

有色地质家园 160平方 四室两厅 新中式 案例装
810x565 - 158KB - JPEG

365户型解析:元洲装饰作品127平方四室两厅
500x435 - 31KB - JPEG

洛阳怡和花园180平米四室两厅两卫平面图 - 洛
800x909 - 182KB - JPEG

洛阳怡和花园180平米四室两厅两卫平面图 - 洛
250x250 - 8KB - JPEG

云山诗意 盈竹居二手房出售,四室两厅一卫,新干
553x468 - 46KB - JPEG

4室2厅2卫 莞惠区 惠州 中萃艳阳下小区 毛坯房
429x450 - 72KB - JPEG
四室两厅户型平面图 图片_hao123网址导航
510x529 - 41KB - JPEG

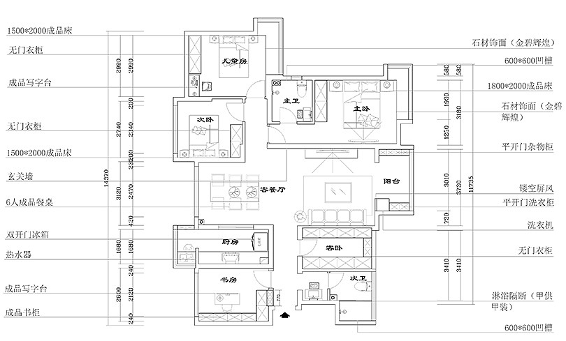
某户型装修平面图(四室两厅两卫)
250x209 - 24KB - JPEG

雅居乐国际花园130平方四室两厅新中式案例装
810x489 - 84KB - JPEG
130平米四室两厅装修少需要多少钱柠檬树装饰发现当下的房价,高得让很多经济条件不好的家庭望而却步,即便勉强购买,他们也只会选择小户型商品房,这已经是一种非常普遍的
152平米四室两厅住宅户型平面图 如何下载 资料大小:177 KB 运行环境:NT/2000/XP/2003/Vista 资料语言:简体中文 资料评级: 授权形式:资料共享 更新时间:2019-01-28 15:20:
一起装修网问答平台为您提供120平米四室两厅平面图的相关答案,并为您推荐了关于120平米四室两厅平面图的相关问题,一起装修网问答平台:装修问题,因我而止。 短信快捷登
装修123网效果图专区,收集整理最新最全的最新140平米四室两厅室内平面图设计,四室两厅室内平面图,140平米设计图,等装修案例图片,更多最新140平米四室两厅室内平面图
土巴兔装修效果图频道四室两厅两卫平面图大全专区提供最新最流行的四室两厅两卫平面图大全,其他装修效果图,功能区装修图片,每天更新数百套四室两厅两卫平面图大全案例
房天下装修效果图频道是国内海量的高质量装修效果图片库,每日更新上千套180平方米四室两厅两卫户型图大全,为您装修提供参考。 北京 热门城市 ABCDFGH JKLMNQST