中国供应商(免费提供湖南100平米农村自建房设计图、湖南100平米农村自建房设计图价格、湖南100平米农村自建房设计图报价,欢迎来电咨询,湖南100平米农村自建房设计图
一栋好的别墅不仅要求户型合理实用,在外观和细节上也要下下功夫,毕竟是住一辈子的地方,赏心悦目也很重要。这里给大家推荐一套100平米农村自建
今天小编给大家分享的这2款农村二层自建房设计图,占地均在100平方米左右,一款采用坡屋顶设计,一款平屋顶设计,给人的视觉感受不同,在造价上也
今天给大家推荐一套小户型的自建房设计图方案,占地面积不足100平米小而精,而且造价非常低,适合农村盖房,南北通用。在农村有些不是很富裕的家
今天分享的100平方米12x9米简易三层农村自建房户型就是如此,房屋结构层次分明,外观设计美观大气,室内布局合理,有较多卧室,还有阳台、大露台、禅修房,可满足人口较多的

芳菲尽 山寺桃花始盛开 开贴建设我的自建房 装
1024x824 - 79KB - JPEG
4款农村100平方自建房设计图 是房子更是传家
554x408 - 40KB - JPEG
4款农村100平方自建房设计图 是房子更是传家
554x421 - 40KB - JPEG
4款农村100平方自建房设计图 是房子更是传家
554x397 - 42KB - JPEG

2015年新农村自建房10米X10米两层100平米现
600x606 - 109KB - JPEG
4款农村100平方自建房设计图 是房子更是传家
554x427 - 45KB - JPEG
4款农村100平方自建房设计图 是房子更是传家
554x501 - 62KB - JPEG

2015年新农村自建房10米X10米两层100平米现
600x596 - 114KB - JPEG

最受农村人喜欢的10套占地100平自建房设计图
640x736 - 57KB - JPEG

两层100平米现代风格2016年新农村自建房设计图
627x356 - 351KB - PNG

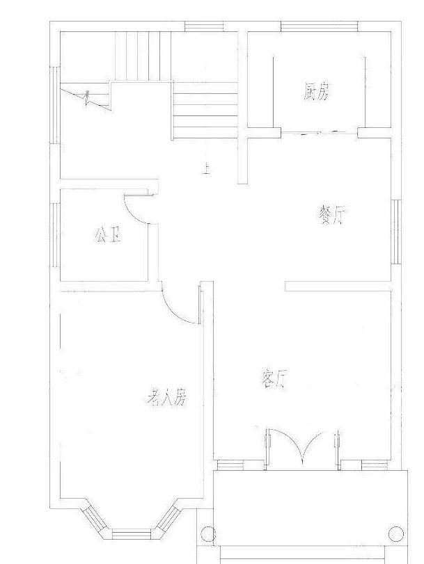
25万占地100平方米2厅4卧农村自建房设计图
609x811 - 25KB - JPEG
100平米9x10米7卧3卫简单三层农村自建房别墅
640x587 - 67KB - JPEG

2栋占地约100平米的三层别墅设计图,适合农村
640x564 - 84KB - JPEG

大家帮我设计一个90到100平方米的经济型住宅
600x369 - 28KB - JPEG

一款中式一款徽派风格二层农村自建房设计图,
640x476 - 35KB - JPEG
土巴兔装修效果图频道100平米自建房设计图欣赏专区提供最新最流行的100平米自建房设计图欣赏,潮流混搭装修效果图,每天更新数百套100平米自建房设计图欣赏案例,为您提
本专题为土木在线100平方自建房设计图专题,全部内容来自与土木在线图纸资料库精心选择与100平方自建房设计图相关的资料分享,土木在线为国内专业的土木工程垂直站点,
100平米自建房设计图精华帖大全专题为土木在线100平米自建房设计图相关内容精选专题,土木在线千万工程师在线对100平米自建房设计图的讨论、交流及资源分享尽在100
本专题收藏了很多精品的农村100平方房屋设计图,建筑占地面积在100平房左右的农村房屋设计图,此专题收录的图纸为宅基地小户型房子设计施工图纸,供参考! 农村自建房 就