
嘉定黄渡212平米厂房出租(模具车间厂房)-上海
500x375 - 30KB - JPEG

出售公司模具车间设备一套 加工中心 火花机 数
600x600 - 68KB - JPEG

机械轴是如何诞生的 凯华模具车间偷拍
550x360 - 32KB - JPEG

珠海钳工车间工具整理柜,中山模具车间工具放
500x375 - 39KB - JPEG

【五金模具车间手推车,三层工具车手推车厂家
520x458 - 46KB - JPEG

模具车间,模房转让,模具厂设备转让图片,模具车
640x480 - 46KB - JPEG

锦盛重型工作台用于模具车间机械装配维修重工
500x375 - 51KB - JPEG

台州黄岩北城塑料模具 荐塑料11升涂料桶模具
603x401 - 52KB - JPEG

小型龙门吊,模具车间钢架,深圳简易行吊,移动龙
400x300 - 46KB - JPEG

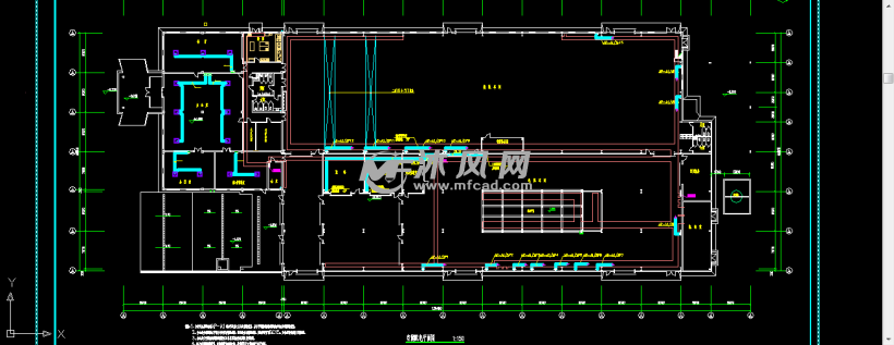
汽车模具公司车间电气图 - AutoCAD厂区规划图
1307x505 - 39KB - PNG

【三格三层模具架价格【模具车间放模具的架子
500x374 - 93KB - JPEG

五金模具放置架 模具存放架 车间模具摆放架 -
780x554 - 85KB - JPEG

图片 供应注塑模具精密模具车间2 图片 慧聪网
640x853 - 49KB - JPEG

【数控机床工作桌生产厂家,模具车间工作桌尺
1024x847 - 248KB - JPEG

中山模具车间工作台生产厂家
800x450 - 115KB - JPEG
北城厚施路(新亚集团后面)厂区内有模具车间3间出租,车间干净整洁,光线非常好,行车已装好,适合做模具
黄岩北城金牛路有350平方精品模具车间出租,大、小行车、水电齐全,搬进就可直接生产,办公室200平方出租,
模具车间行车水电一并俱全 2015年11月11日 14:联系人:手机:地址:台州-黄岩区-台州_黄岩北城加油站附近
黄岩北城开发区标准模具车间现有空闲位置,机床位出租,可带办公室,车间光线好,出入方便,水电行车齐全,
交通便利,水电齐全有行车,另外有五百平方精装修办公楼 信息类别 房产 厂房,仓库 供求
北城厂房,有行车,适合模具等各行业,水电齐全,各种证件齐全,车间700平方米,仓库800平方米,有行车,
类 型:厂房出租 面 积:100㎡ 付款方式:暂无信息 租 期:暂无信息 相关费用:暂无信息 所在地址:黄岩-
出租黄岩北城标准模具车间厂房/仓库/土地现有500平方和600平方的标准模具车间出租,有行车,可以随时看厂。
本厂有模具车间60平方出租,50每平方,二楼办公室二间出租,(己全部包含北城庆丰大道模具车间出租,黄岩论坛