铺地砖怎么把干硬灰能平, 懂的换位思考 2013-03-24 提问 最新回答 (1条回答) 山贼1级 2013-04-20 回答 用大的铁抹子,最好用带齿的(可以自己加工),坦平!放上瓷砖敲一下,拿

空调洞尺寸|空调专业穿墙洞,洞口尺寸(长*高)a4
600x450 - 33KB - JPEG

梁体可以打穿墙洞吗?
560x394 - 114KB - JPEG

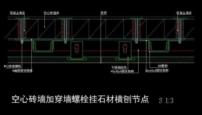
CAD空心砖加穿墙螺栓干挂石材横剖节点模板
650x370 - 28KB - JPEG

空调洞尺寸|空调专业穿墙洞,洞口尺寸(长*高)a4
573x285 - 82KB - JPEG

氰凝灌浆料地下室穿墙管函洞堵漏施工图片,氰
640x480 - 22KB - JPEG

穿墙管_pvc螺杆套管1618穿墙管线管灰管蓝管
1920x1440 - 605KB - JPEG

空调洞尺寸|空调专业穿墙洞,洞口尺寸(长*高)a4
575x400 - 194KB - JPEG

CAD空心砖加穿墙螺栓干挂石材横剖节点模板
780x751 - 184KB - JPEG

【小狗产后 身材 走形,穿墙洞卡肚子】6月8. 来
640x360 - 16KB - JPEG

电厂 变电站 防火墙 电缆竖井 穿墙洞防火封堵阻
600x399 - 30KB - JPEG

穿墙螺杆洞封堵问题
484x301 - 16KB - PNG
楼板穿墙预留洞封堵吊模板\/排水管预留洞封堵
690x515 - 67KB - JPEG
楼板穿墙预留洞封堵吊模板\/排水管预留洞封堵
690x516 - 61KB - JPEG

螺杆套管_pvc螺杆套管 22 25穿墙管 灰 蓝 钢筋
1024x768 - 291KB - JPEG

CAD空心砖加穿墙螺栓干挂石材横剖节点模板
650x851 - 93KB - JPEG