风管及桥架穿墙、穿板封堵施工方案 clivelau0216上传于2013-12-05|暂无评价|0人阅读|0次下载|暂无简介|举报文档 阅读已结束,如果下载本文需要使用1下载券 下载 想免费下载

请教,风管穿墙洞套管问题
2048x1536 - 218KB - JPEG

风管穿墙穿屋面做法详图免费下载
299x221 - 7KB - PNG

风管穿墙洞口封堵方案_文档下载
1200x1697 - 83KB - GIF

风管穿墙洞口封堵方案_文档下载
1200x1697 - 20KB - GIF

风管穿墙洞口封堵方案_文档下载
1200x1697 - 65KB - GIF
风管穿墙一般预留的洞比风管大多少?
600x450 - 37KB - JPEG

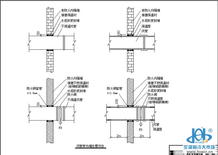
风管穿楼板屋面和墙的大样图-暖通设备及末端
837x593 - 63KB - JPEG

搜集地铁安装专业施工图片 - 空调工程
560x413 - 45KB - JPEG

风管穿楼板屋面和墙的大样图_免费vip免费下载
837x593 - 66KB - JPEG

搜集地铁安装专业施工图片
560x418 - 52KB - JPEG

请教,风管穿墙洞套管问题
2048x1536 - 243KB - JPEG

风管及桥架穿墙穿板封堵施工方案.docx
794x1123 - 18KB - PNG

风管水管桥架穿墙穿楼板封堵要求.doc
993x1404 - 49KB - PNG

全面实用的风管及桥架穿墙、穿板封堵施工方案
568x228 - 31KB - JPEG

找空调穿墙管,高压穿墙套管,风管穿墙套管,穿墙
400x300 - 11KB - JPEG