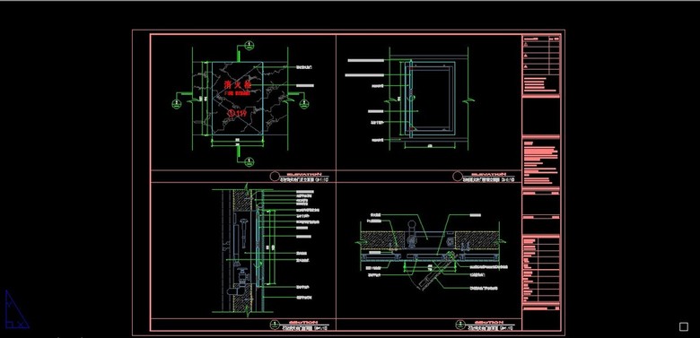
消防栓箱门的开启方向分左开和右开两种,至于选择哪钟,跟消防箱安装位置有关,主要是遵循消防箱门开启方便,同时不影响安全疏散的原则。希望我?

干挂石材消火栓门模板下载(图片编号:1214669
1024x495 - 80KB - JPEG

干挂石材消火栓门(图片编号:12146692)_节点详
780x377 - 42KB - JPEG

消防栓详细做法 - AutoCAD工装图纸下载
732x571 - 97KB - JPEG

消防栓详细做法 - AutoCAD工装图纸下载
585x430 - 49KB - JPEG

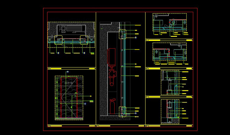
某酒店消防栓门及音控室观察窗节点大样图_c
610x432 - 30KB - JPEG

某地商务酒店消火栓门节点大样图纸
610x432 - 29KB - JPEG

某酒店装修工程消火栓门节点大样图_cad图纸
610x432 - 25KB - JPEG

消火栓石材暗门大样设计图纸免费下载
294x269 - 6KB - PNG

室内消火栓在平面图纸中如何标识_360问答
600x367 - 56KB - PNG

室内消火栓安装图_CO土木在线图纸下载
533x427 - 84KB - JPEG

CAD消防栓石材干挂门节点详图(图片编号:133
650x779 - 104KB - JPEG

隐形消防栓节点详图(图片编号:11669648)_CA
780x457 - 93KB - JPEG

消防栓石材暗门节点图模板下载(图片编号:149
780x708 - 104KB - JPEG

消防栓剖面节点大样模板下载(图片编号:12410
1024x576 - 342KB - JPEG

消防栓装饰门及井管门设计节点图
1024x683 - 78KB - JPEG