缺乏活动的参与、体验和动手实践的机会。为了全面推进天文科普教育,学校在实施过程中尝试 ‚六化‛模式--即环境化、课程化、活动化、社区化、课题化、网络化,让‚天文

【北京美勤健身学院教育科普】腕管综合征的纠
640x325 - 18KB - JPEG

浙江省科技馆科普展览业务营销策略研究-工商
800x1262 - 1578KB - PNG

书教育语文阅读得高分策略与技巧初中卷_图书
400x400 - 43KB - JPEG

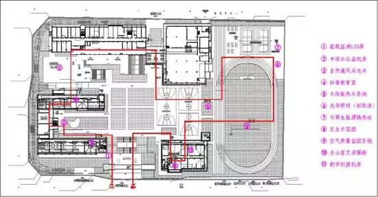
生态绿色学习新乐园 方舟创建一流教育品牌校
550x287 - 45KB - JPEG

【北京美勤健身学院教育科普】腕管综合征的纠
640x427 - 23KB - JPEG

【北京美勤健身学院教育科普】腕管综合征的纠
554x790 - 56KB - JPEG

教育书MEJT期货交易策略:标准普500指数日内
300x300 - 17KB - JPEG

【北京美勤健身学院教育科普】腕管综合征的纠
640x427 - 27KB - JPEG

【北京美勤健身学院教育科普】腕管综合征的纠
640x465 - 16KB - JPEG

【北京美勤健身学院教育科普】腕管综合征的纠
640x427 - 27KB - JPEG

【北京美勤健身学院教育科普】腕管综合征的纠
561x300 - 13KB - JPEG

【北京美勤健身学院教育科普】腕管综合征的纠
610x380 - 28KB - JPEG

【北京美勤健身学院教育科普】腕管综合征的纠
569x320 - 12KB - JPEG

【正版全新】适于脑的策略--脑科学与教育译丛
300x300 - 16KB - JPEG

【北京美勤健身学院教育科普】腕管综合征的纠
640x243 - 24KB - JPEG