本专题为土木在线消防电气安装专题,全部内容来自与土木在线图纸资料库精心选择与消防电气安装相关的资料分享,土木在线为国内专业的土木工程垂直站点,聚集了1700万土

大型房地产的消防电气整套安装图纸 - AutoCA
768x540 - 34KB - PNG

泰和安分享消防电气火灾监控系统安装十项重点
2584x2254 - 193KB - JPEG

《常用建筑电气安装消防水电弱电施工及质量验
800x800 - 44KB - JPEG

火灾探测器和消防报警按钮安装图集-电气减灾
520x353 - 92KB - JPEG

求全套电气、水暖、消防安装规范和图集。-哪
435x332 - 20KB - JPEG

电工电气维修安装-提供消防火灾自动报警系统
560x420 - 56KB - JPEG

湖南龙山高层商住楼电气、消防安装设计施工图
610x432 - 29KB - JPEG

消防维保工程改造喷淋安装安防监控\/电气检测
310x310 - 13KB - JPEG

青岛市城阳区消防工程维修_青岛市城阳区消防
550x413 - 26KB - JPEG

安装预算实操班培训学校 上海电气消防安装预
340x258 - 27KB - JPEG

物业管理、消防工程 电梯安装 电气工程报考证
340x252 - 17KB - JPEG

《常用建筑电气安装消防水电弱电施工及质量验
800x800 - 175KB - JPEG

5.33.26火灾自动报警系统消防电气控制装置安
722x990 - 67KB - JPEG

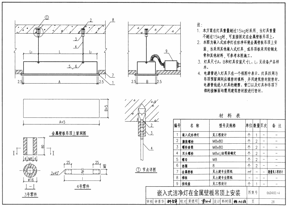
安装电气图例_建筑电气安装图例_消防电气安
1000x719 - 50KB - PNG

国标消防图集2
708x509 - 73KB - JPEG