消防电梯间应设前室,其面积:居住建筑不应小于4.50m2;公共建筑不应小于6.00m2。当与防烟楼梯间合用前室时,其面积:居住建筑不应小于6.00m2;公共建筑不应小于10m2。净宽

2015新版消防楼梯与电梯 尺寸选择-开讲
700x267 - 139KB - PNG

2015新版消防楼梯与电梯 尺寸选择-开讲
541x231 - 87KB - PNG

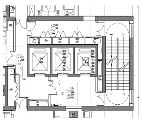
17层的住宅,地下室部分楼梯间和消防电梯前室
336x530 - 36KB - JPEG

住宅电梯井道尺寸|搜房地产资讯
710x344 - 64KB - JPEG
.png)
超高层住宅的设计思考
290x249 - 24KB - PNG

高层住宅楼梯及消防电梯前室的问题?
640x354 - 86KB - JPEG

消防电梯是在建筑物发生火灾时供消防人员进行
360x178 - 10KB - JPEG

高层住宅中,楼梯间+电梯的24种组合方式_电梯
666x587 - 61KB - JPEG

湖南担架电梯尺寸,湖南消防电梯尺寸,湖南奥迪
200x200 - 836KB - OTHER

消防电梯源文件_丰湖花园建筑设计方案CAD图
878x827 - 178KB - JPEG

消防电梯前室设置消火栓问题!
450x403 - 46KB - PNG

湖南担架电梯尺寸,湖南消防电梯尺寸,湖南奥迪
200x136 - 5KB - JPEG

某小区高层消防电梯详图
679x500 - 78KB - JPEG

担架电梯尺寸,消防电梯尺寸,奥迪斯电梯尺寸,住
280x200 - 58KB - PNG

请设计院高手看看 17层住宅的建筑交通核是否
600x474 - 114KB - JPEG