筑龙教育网精选561个消火栓箱生产标工艺图相关培训课程。通过筑龙教育网报名可享受最高20%的现金返还,筑龙VIP会员还有专属价格优惠。 《风景与记忆》冯国安——遇

消防箱安装图集1334―21_360问答
600x451 - 43KB - JPEG

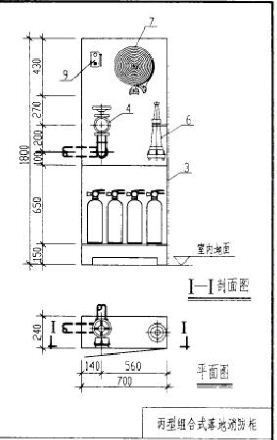
1800\/700\/200的消防箱明装离地面多高_360问
550x527 - 37KB - JPEG

12s4_14页甲型和12s4_17页甲型消防箱是什么
600x556 - 40KB - JPEG

暗装消防箱70宽1800高180厚距地标高度_360
600x370 - 44KB - JPEG

l03s004 69双栓消防箱外型尺寸_360问答
600x431 - 49KB - JPEG

图集99s202。8,9页消防箱规定_360问答
600x435 - 43KB - JPEG

12s4_14页甲型和12s4_17页甲型消防箱是什么
600x290 - 26KB - JPEG

这个图纸中的消防箱表示的是单栓还是双栓?_
600x800 - 94KB - JPEG

高密城嘉梓潼家园消防箱这样设计合理吗_360
600x445 - 19KB - JPEG

一米八的消防箱进水口多高_360问答
277x440 - 19KB - JPEG

北京消防箱浅析幼儿园消防安全
390x423 - 60KB - JPEG

请问,04s202-4消防箱是多大规格的_360问答
600x388 - 41KB - JPEG

l03s004-26消防箱乙型是多大_360问答
600x394 - 46KB - JPEG

走访郑州十余高层小区查消防隐患 打开消火栓
400x533 - 147KB - JPEG

写字楼消防箱大唱空城计 物业:建房时就没有(图
300x400 - 16KB - JPEG