
型钢卸料平台施工方案
622x425 - 18KB - PNG

四分公司赵北峰城中村改造工程项目简报(第十三期)
500x375 - 65KB - JPEG

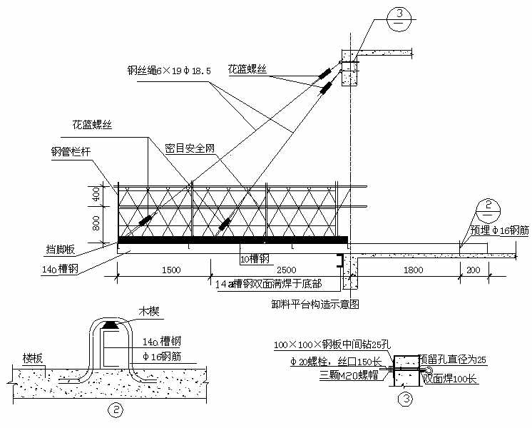
宜都工地建筑施工高层悬挑式卸料平台安全规范尺寸标准
750x635 - 411KB - JPEG

第一次见!无需预埋,可内外移动的卸料平台!你用过吗?
714x535 - 107KB - JPEG

第一次见!无需预埋,可内外移动的卸料平台!你用过吗?
640x351 - 50KB - JPEG

第一次见!无需预埋,可内外移动的卸料平台!你用过吗?
640x351 - 50KB - JPEG

【卸料平台吊料平台】-黄页88网
710x434 - 58KB - JPEG

悬挑式卸料平台 武汉高层建筑卸料平台厂家 专利标准设计 汉坤实业
750x609 - 154KB - JPEG

施工现场安全隐患排查内容!悬挑式卸料平台
540x549 - 30KB - JPEG
![[分享]四层框架结构落地卸料平台资料免费下载](http://f.zhulong.com/v1/tfs/T1nOC_B5KT1RCvBVdK_0_0_760_0.png)
[分享]四层框架结构落地卸料平台资料免费下载
754x435 - 106KB - PNG

湖南高岭建设在汉坤实业采购大批悬挑架卸料平台专业厂家- 湖南汉坤实业
550x400 - 135KB - JPEG

落地式卸料平台实例展示,汉坤出品
650x488 - 97KB - JPEG

悬挑型钢卸料平台施工方案,超详细!
499x342 - 46KB - JPEG

卸料平台钢梁锚固
746x600 - 55KB - JPEG

卸料平台周至县哪个厂家口碑好-景丰建筑标化
600x400 - 29KB - JPEG