设计理念
在知道享受生活的同时,要爱自己,爱家人。 屋主说:“风食露宿不是我想要的生活,淡泊才是生活的真谛。 简单的姿态和禅意的生活境界,是追求高品质的生活
案例信息
面积是97㎡。
户型两三居
风格双方美国
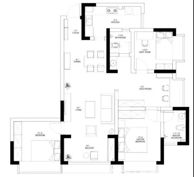
平面图:

玄关

由于入口空间狭小,门厅和客厅之间的转移只使用了墨绿地毯。
客厅

由上而下清晰的颜色、白色、淡蓝色、复古色、完美的色调。 设计师可以将顶灯直接变成灯,分散光源,创造高雅的氛围。 原木颜色的间隔茶数和亚麻材质的沙发支撑在斑点地毯上,互补养眼。

凸形原木的电视柜,姿势大方。 多层储藏物小格子,容易收纳小的。
餐厅

一般的餐厅结构,同系统感觉的家具和气氛协调温暖。

清新的吊灯,为饮食营造出浪漫的气氛。 高弹海绵包座椅,柔软舒适~,浅灰色餐厅旗帜和座椅互相衬托~。

精致的生活态度往往是花束,真的吗? ? 不经意间的小布局中出现了像一套烛台一样。
厨房

纯白的油漆橱柜和明亮的油漆灰色的瓷砖组合,展现了厨房应该有的清洁的姿态,“柔顺的线滑动”大理石的地面容易擦干净。 我最喜欢厨房是从这个瞬间开始的。
主卧位

0
卧室里客厅的颜色接连不断,灰色的蓝色背景墙上出现两幅金边画,原木床头盒,大气床头,金色相框,三人颜色相似,高级感在此不显眼。
女儿的家

全屋唯一的香柠檬黄色墙面,让女儿的房间充满活力。 纯白的帐篷充满了孩子露营的心,蜘蛛侠和长颈鹿等娃娃和孩子在一起,童心是最重要的~
书斋


小户型书房不需要大书架/书架。 像这样虚构的柜台,成为抽屉,可以画画。 值得复印。
厕所

门的磨砂玻璃窗使厕所的隐私更加强烈,洗脸盆下面的洗脸盆的设计可以说非常温柔。