
宅基地小不是问题,三款占地面积80平方农村自建房,你应该喜欢!
604x628 - 46KB - JPEG

经典小户型新农村房屋住宅设计图,10万左右
650x803 - 432KB - JPEG

2015最新农村80平方房屋设计图_装修123效果图
1153x1251 - 156KB - JPEG

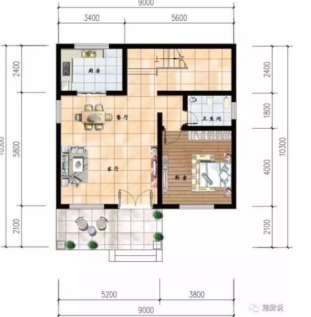
80平米农村三层自建房设计效果图CAD图纸齐全小户型别墅施工图
640x635 - 35KB - JPEG

80平米三层小户型设计:20万3厅5卧带阁楼层车库农村小别墅设计图
390x485 - 39KB - JPEG

金鼎·凤凰城户型图赏析 引领城市宜居潮流-楼
500x375 - 57KB - JPEG

20x13米带农村伙房的二层乡村别墅
640x453 - 28KB - JPEG

世茂蓝屿 蓝血的英式低密社区
490x600 - 37KB - JPEG

密云懿品府3月推80-140平2-3居户型图曝光(图
450x380 - 40KB - JPEG

女主人兴奋装修初体验 80平简约爱巢美极了
600x409 - 71KB - JPEG

农村80平米户型图大全
1000x667 - 114KB - JPEG

宅基地小不是问题,三款占地面积80平方农村自
615x626 - 40KB - JPEG

金鼎·凤凰城户型图赏析 引领城市宜居潮流
500x375 - 53KB - JPEG

东城国际户型图-东城国际4号楼76平米Loft2层
500x375 - 71KB - JPEG

31种住宅户型图设计(80~130平米)_cad图纸下
610x432 - 37KB - JPEG
手机房天下装修效果图农村80平米户型图大全专区,是国内海量全面的高质量农村80平米户型图大全库,为您提供
图纸介绍:本方案为80到90平米自建楼房设计图,小户型经典设计。86平方米,整体造价偏低,面积虽然不大,但
装修123网2019农村80平米户型图大全专区,收集整理精美的2019农村80平米户型图大全装修效果图,2019农村80
农村80平米户型图 80平米户型图 80平米户型 农村80平米别墅 80平米户型装修 农村150平米户型图 农村90平米
开间:8米 进深:9米 占地面积:71平方米 建筑面积:208平方米 户型紧凑,按照农村自建房屋特点设计、特别
最新文章 欧式洋房装修图片分享 欧式洋房装修设计方法 生态木吊顶价格多少学装修>搜索大全>农村户型图大全
农村80平米两层设计图 农村80平米两层设计图 最热精选 最新美图 风格 空间 农村两层房屋室内设计图片大全
户型独特,造型别墅致的二层农村小别墅,面积比较小,开间7.9米,进深9.6米,占地79平方米,建筑134平方米
其实,小户型有小户型的好处,本期,我们推荐两款占地80平米的小户型别墅和传统的农村小洋楼有着本质的区别